Hyde


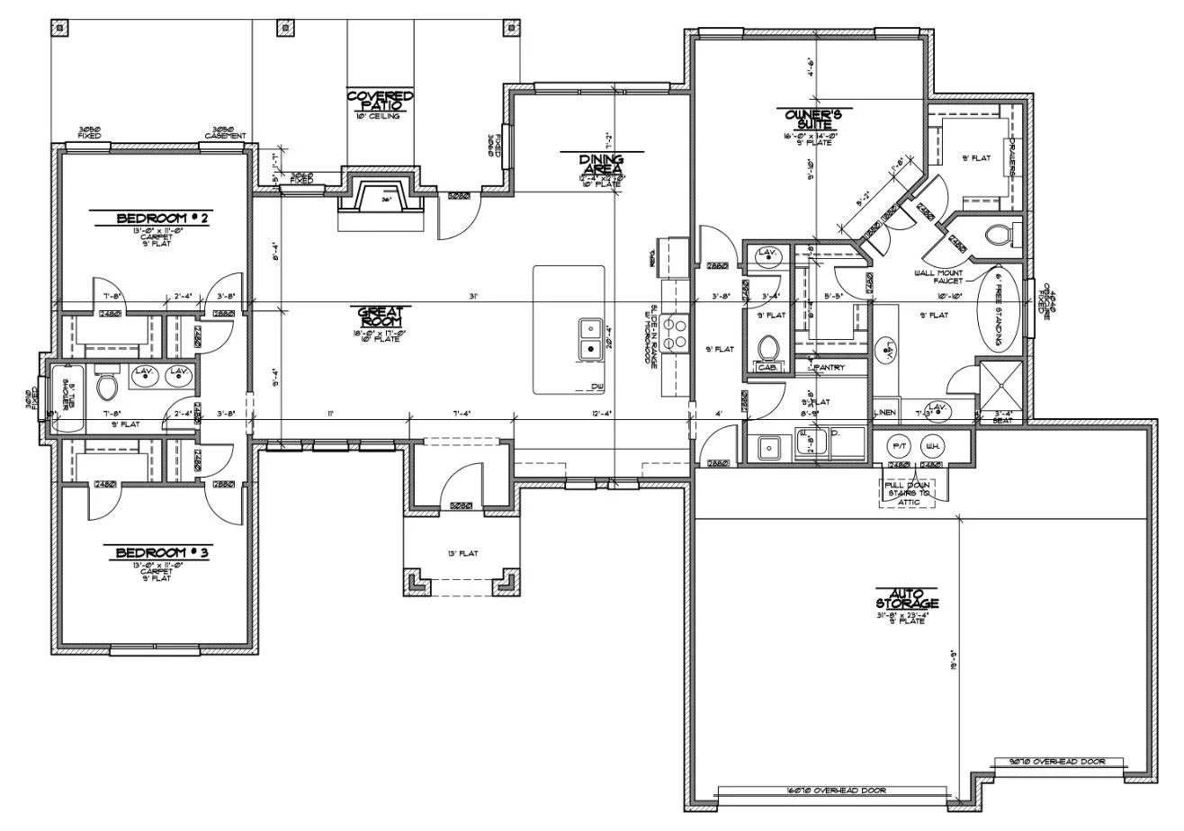
This 1,936 sq. ft. abode is a treasure trove of thoughtful design, offering 3 bedrooms and 2.5 bathrooms, complete with a 3-car garage that's as spacious as it is functional. The exterior presents a modern, clean-lined façade featuring a harmonious blend of brickwork and distinctive wood accents. Step inside to discover a luminous, open-plan living area where light spills in through ample windows, illuminating the sleek, contemporary kitchen that boasts elegant countertops, a herringbone backsplash, and state-of-the-art appliances. The bedrooms promise comfort and privacy, with the master suite featuring a sumptuous en-suite bath with a soaker tub and a stand-alone shower, tiled in crisp whites and accented with chic fixtures. Storage solutions are seamlessly integrated throughout the home, including a practical laundry and a meticulously organized closet space. The sizable backyard beckons for outdoor activities or future landscaping dreams. This property is a sanctuary of modern living, ideal for those seeking a stylish yet practical home to make their own.


Gallery


Previous
Previous

Llano

Next
Next

Kingston